FEATURES:
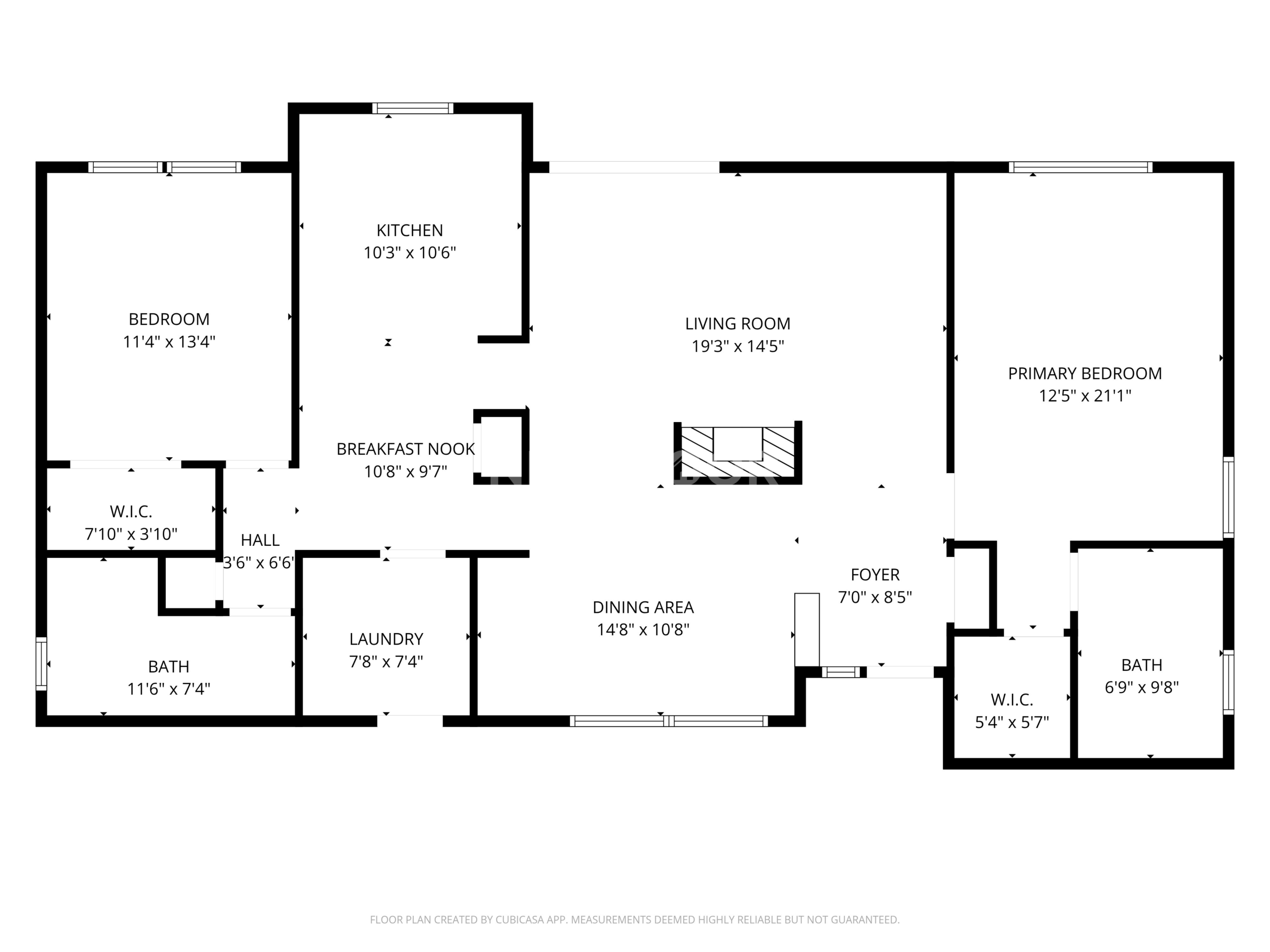
Investor Special in Ocala. Perfect for a flip or as a buy and hold. Located in a quiet, established neighborhood with no HOA, this opportunity sits just minutes from Downtown Ocala’s shops, restaurants, and entertainment and within the Marion County School District. Homes in this pocket consistently show low days on market, making it attractive for both resale and rental strategies. The property already benefits from a newer roof (approximately 5 years old) and fully paid-off solar panels, keeping major expenses low for the next owner. An additional value-add opportunity lies in the massive second dining area, where many investors in the neighborhood are closing off a portion to create a third bedroom, significantly increasing resale value and aligning the home with higher-performing comps.
REHAB:
This is an easy renovation. The home mainly needs cosmetic updates to meet current retail expectations, with major systems already in place thanks to the newer roof and solar panels. Recommended improvements include refreshing the kitchen, bathroom, and flooring, along with interior and exterior paint and light landscaping to elevate curb appeal. Taking advantage of the oversized dining space to convert part of it into a third bedroom, a strategy already being used by investors in the neighborhood, can further increase livable functionality and push ARV even higher. With a straightforward scope of work and a clear value-add option, this project offers an excellent path to quick profits.
COMPS:
290 NE 51st Ave, Ocala, FL 34470 – Sold for $295,000 – {Original, 3Bd/2Ba, 1,626 sqft, Under Contract in 45 Days}
247 NE 44th Ave, Ocala, FL 34470 – Sold for $350,000 – {Updated, 3Bd/2Ba, 1,998 sqft, Under Contract in 25 Days}
200 NE 52nd Ave, Ocala, FL 34470 – Sold for $329,000 – {Updated, 3Bd/2Ba, 1,540 sqft, Under Contract in 25 Days}
5030 SE 3rd Pl, Ocala, FL 34471 – Sold for $337,000 – {Updated, 3Bd/2Ba, 1,682 sqft, Smaller, Under Contract in 33 Days}
10 NE 50th Ct, Ocala, FL 34471 – Sold for $175,000 – {Dated, 2Bd/2Ba, 1,232 sqft, Smaller, Off Market}